Available Plots 4
Portobello
KEY FEATURES
- 3 bed semi-detached
- En-suite
- Fully integrated kitchen
- Luxury fittings
External finishes may vary from shown. Some of our homes are built as a mirror-image (handed) of those shown here. Please do ask your sales consultant for full details.
3 Bedrooms Semi-Detached
3 Bedroom Semi Detached Villa
£ 270,000
Prices from
925 m²
Available Plots
(4)
No
Price
Type
#Plot 4
£ 270,000
3 Bedrooms
#Plot 15
£ 272,000
3 Bedrooms
#Plot 18
£ 272,000
3 Bedrooms
#Plot 19
£ 272,000
3 Bedrooms
3 Bedroom Semi Detached Villa
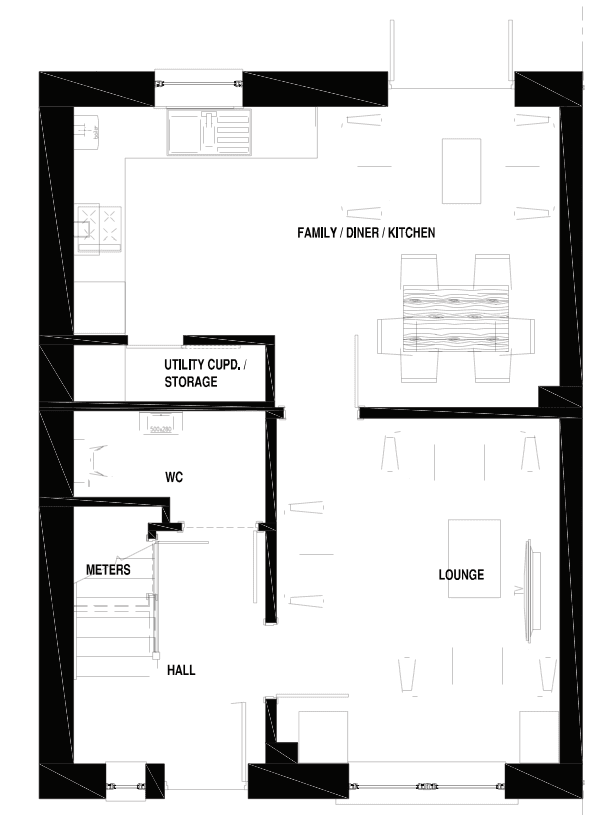
Floor Plans
Ground Floor
First Floor
Lounge
3.29 x 4.00m | 10′ 8″ x 13′ 1″
Family / Diner / Kitchen
5.63 x 3.49m | 18 5″ x 11 5″ 0
WC
2.22 x 1.30m | 7′ 3″ x 4′ 3″

Related Plots
COMING SOON

Price from:
£ 270,000
3 Bedrooms
Portobello
Dalgety Bay, KY11 9JX
Learn more

Contact Us
Choose a development...
Choose a development...
I agree to Muir Homes Privacy Policy
I agree to Muir Homes Privacy Policy
