Available Plots 3
Portobello
This well appointed three bedroom semi-detached villa has an enclosed rear garden, good family accommodation, an integral garage and driveway.
This stunning, contemporary family offers tasteful decor throughout, with accommodation comprising of entrance hallway, lounge, dining kitchen with access to the to the rear landscaped garden, utility and WC.
The upper floor consists of four bedrooms (two with en-suite shower rooms) and family bathroom.
Further benefits include gas central heating and double glazing.
Externally the property benefits from private parking by way of monoblock driveway and rear landscaped garden grounds
KEY FEATURES
• Three bedroom semi-detached villa
• Immaculate condition and high specification
• Stunning Kitchen/Dining Room, spacious lounge
• Enclosed rear garden
• Gas central heating and double glazing
External finishes may vary from shown. Some of our homes are built as a mirror-image (handed) of those shown here. Please do ask your sales consultant for full details.
3 Bedrooms Semi-Detached
Semi-Detached
£ 245,000
Prices from
85.94 m²
Available Plots
(3)
Seamless Flow & Modern Comfort
Upon arrival, you will be greeted by an inviting vestibule that leads to a charming entrance hallway. The hallway seamlessly guides you to an open-plan formal lounge/kitchen/dining area, which features a stunning bay window overlooking the front garden, creating a serene ambience. This expansive and versatile space effortlessly connects to the backyard through French doors in the family room, providing a delightful fusion of indoor and outdoor living. It serves as the perfect backdrop for both everyday family life and entertaining guests.
The ground floor also includes a convenient WC and a utility room with an external door, ensuring easy access to the integral double garage.
Moving upstairs, the first floor showcases a sleek family bathroom and three double bedrooms. The master bedroom boast its own en-suite shower room, offering a touch of luxury and privacy. Additionally, two of the bedrooms feature built-in storage, ensuring ample space for all your belongings.
Amenities & Benefits
Luncarty
6.7 miles
Dundee
24.9 miles
Perth
6.8 miles
St Andrews
38 miles
Edinburgh Airport
48.5 miles
Dunkeld & Birnam Railway Station
9.1 miles
Stanley Primary School
0.4 miles
Stanley Mills
0.7 miles
Strathord Park
0.9 miles
Perth High School
8.7 miles
Bertha Park High School
6.2 miles
Bowling Green
0.4 miles
Stanley & District Village Hall
0.7 miles
Stanley Medical Centre
0.7 miles
Inveralmond Retail Park
5 miles
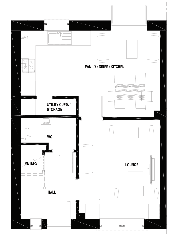
Floor Plans
Lounge
3.29 x 4.00m | 10′ 8″ x 13′ 1″
Family / Diner / Kitchen
5.63 x 3.49m | 18 5″ x 11 5″ 0
WC
2.22 x 1.30m | 7′ 3″ x 4′ 3″

Related Plots
COMING SOON

Price from:
£ 245,000
3 Bedrooms
Portobello
Perthshire, PH1 4PW
Learn more

Contact Us
The Deer Pines, Stanley
The Deer Pines, Stanley
